|
 |
 |
 |
 |
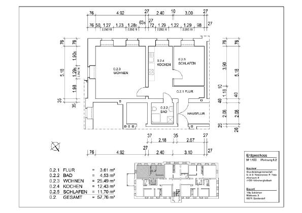
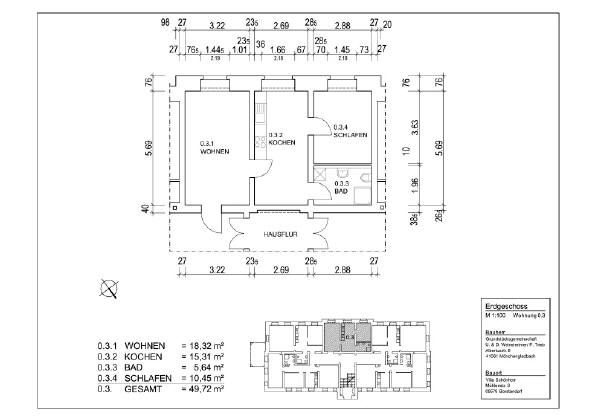
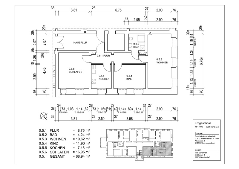
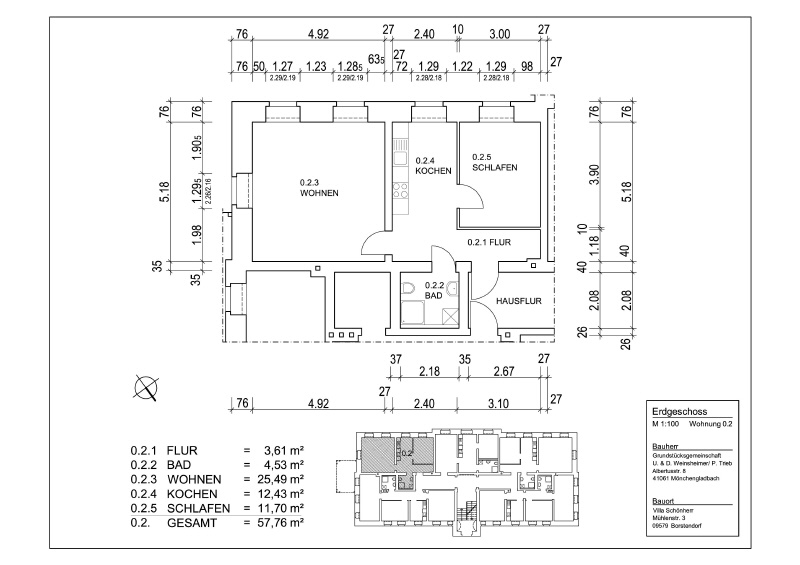
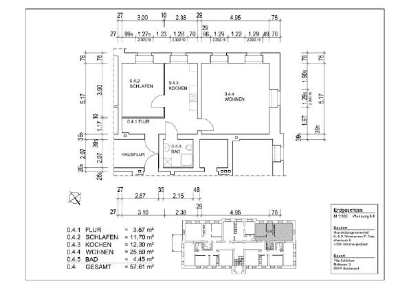
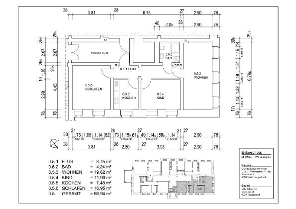
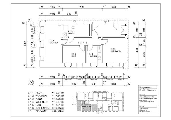
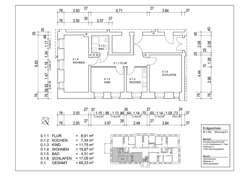
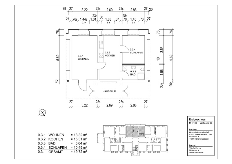
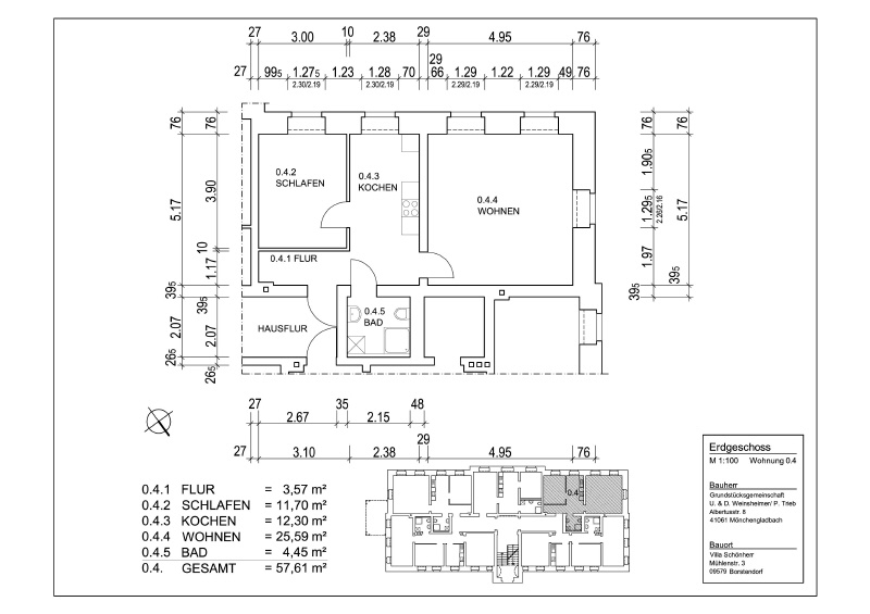
Erdgeschoss
|
Ausstattung:
|
 |
Wohnungen unterschiedlicher Größe, zwischen 49 und 69 qm
|
 |
Gas-Zentralheizung
|
 |
zentrale Warmwasser-Versorgung
|
 |
Fliesen in Flur, Küche und Bad
|
 |
Badezimmerwände raumhoch gefliest
|
 |
Kabelfernsehen
|
 |
teilweise mit Wintergarten
|
 |
teilweise mit aufwendigen Stuckdecken
|
 |
Gartenbenutzung
|
|
|
|
|
|
|
|
|
|
|
|
|
|
|
|
|
|